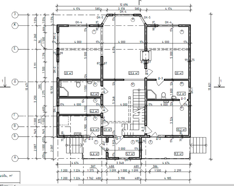
Фундамент — мелкозаглубленный ленточный на буронабивных сваях
Несущие стены — SIP панель (174мм)
Покрытие — битумная черепица
Наружная отделка — фиброцементные панели.
+7(996) 563-22-04
г. Шахунья
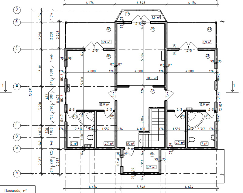
Фундамент — мелкозаглубленный ленточный на буронабивных сваях
Несущие стены — SIP панель (174мм)
Покрытие — битумная черепица
Наружная отделка — фиброцементные панели.





