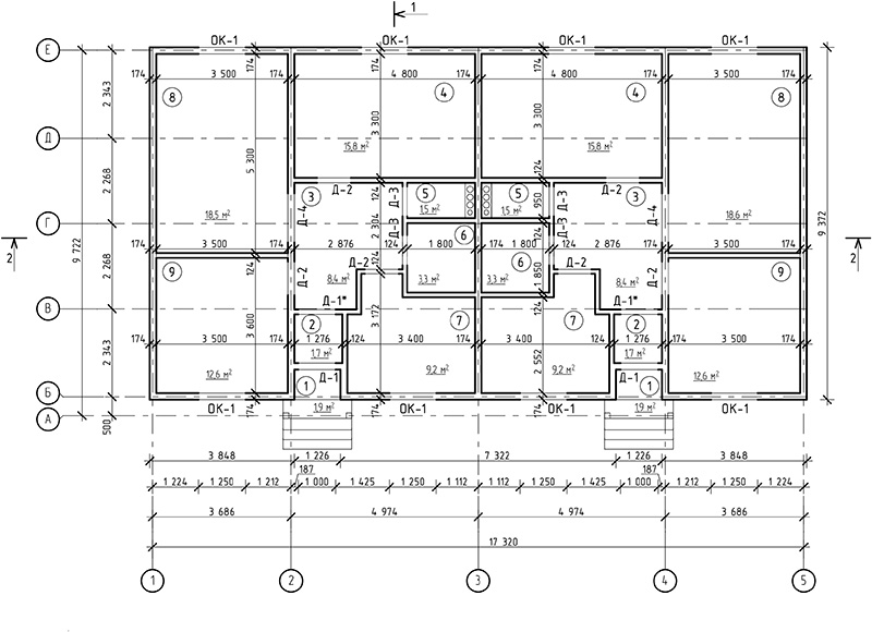
Фундамент — деревянный ростверк на ж/б сваях
Несущие стены — SIP панель (174мм)
Покрытие — битумная черепица
Наружная отделка — сайдинг
+7(996) 563-22-04
г. Шахунья
Фундамент — деревянный ростверк на ж/б сваях
Несущие стены — SIP панель (174мм)
Покрытие — битумная черепица
Наружная отделка — сайдинг




