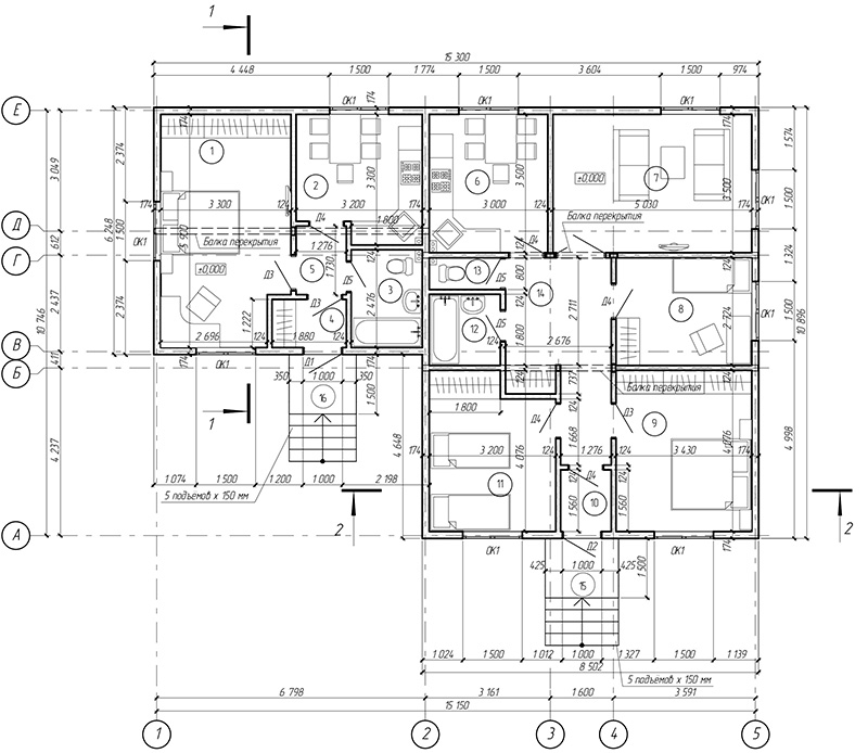
Фундамент — деревянный ростверк на ж/б столбах
Несущие стены — SIP панель (174мм)
Покрытие — мягкая черепица
Наружная отделка — фасадные панели "под природный камень"
+7(996) 563-22-04
г. Шахунья
Фундамент — деревянный ростверк на ж/б столбах
Несущие стены — SIP панель (174мм)
Покрытие — мягкая черепица
Наружная отделка — фасадные панели "под природный камень"




