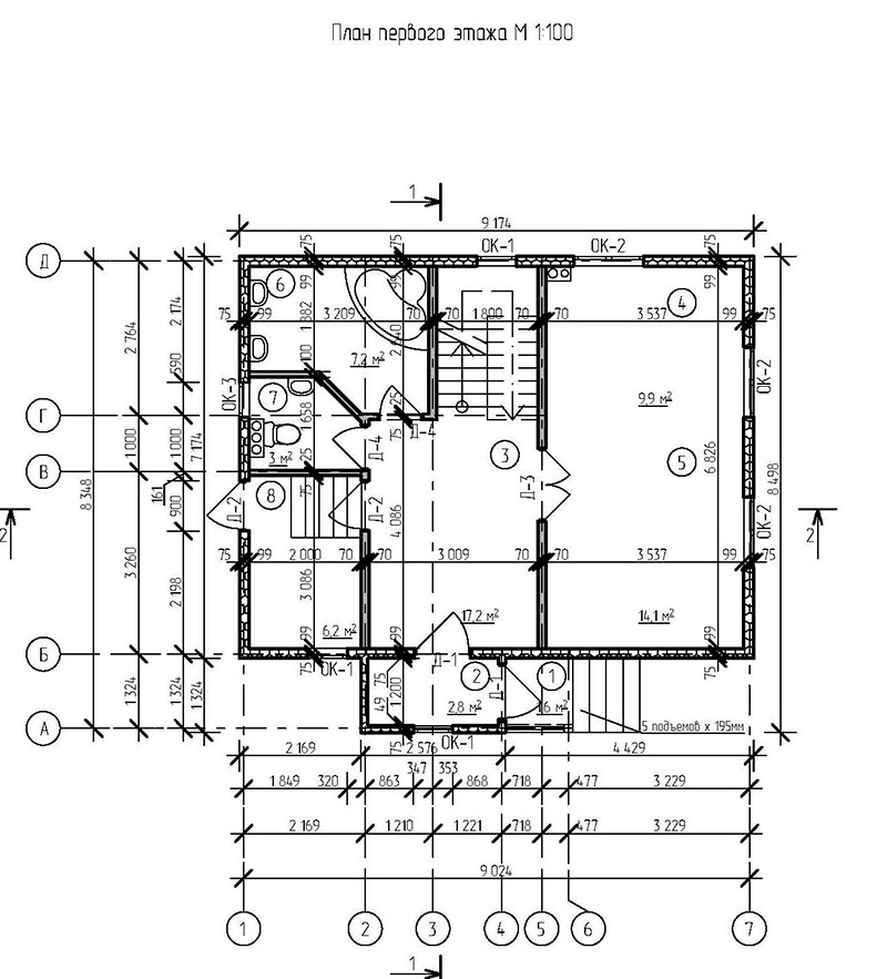
Фундамент — ленточный
Несущие стены — SIP панель (174мм)
Покрытие — мягкая черепица
Наружная отделка —металический сайдинг
+7(996) 563-22-04
г. Шахунья
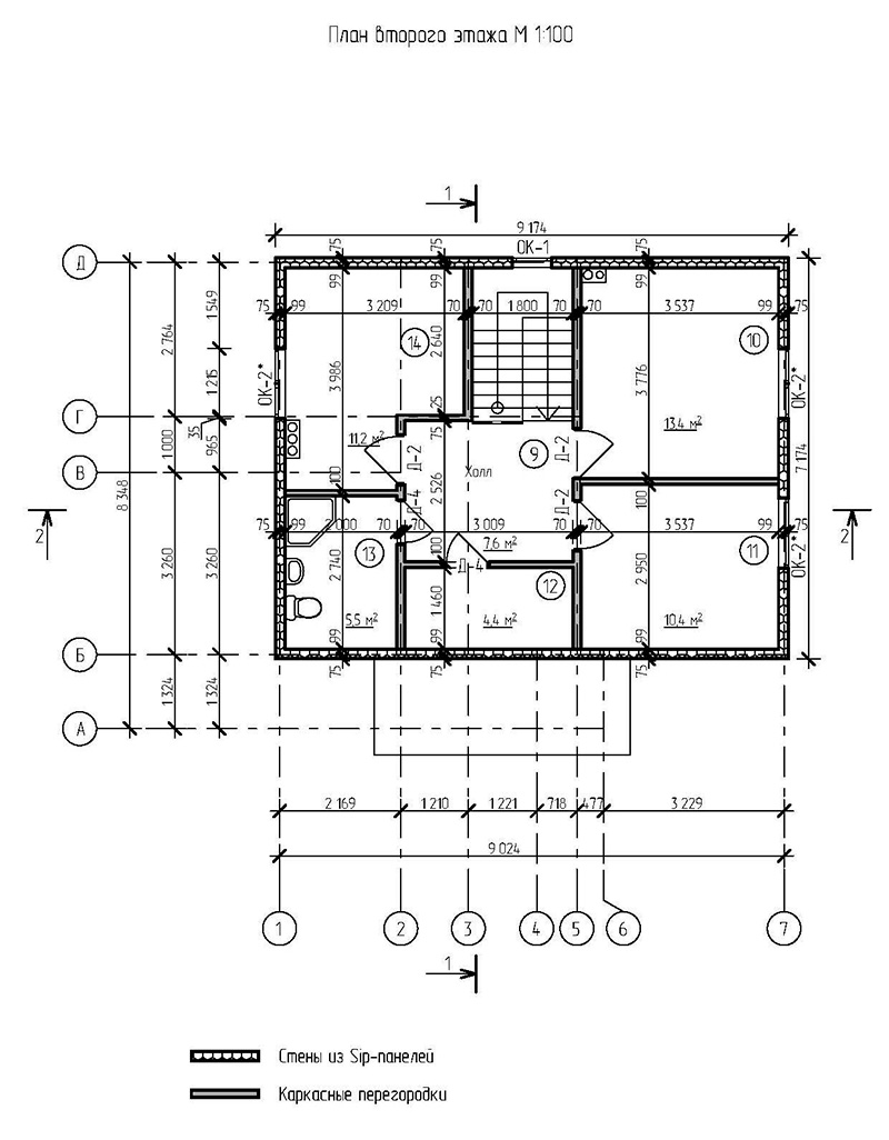
Фундамент — ленточный
Несущие стены — SIP панель (174мм)
Покрытие — мягкая черепица
Наружная отделка —металический сайдинг





