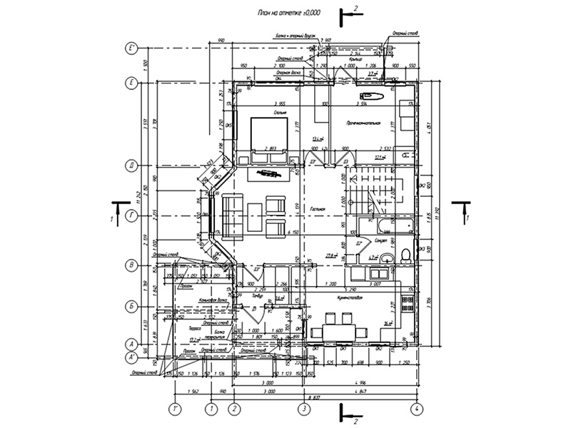
Фундамент — монолитная ж/б плита
Несущие стены — SIP панель (174мм)
Покрытие — металочерепица
Наружная отделка — штукатурка, облицовочная плитка, природный камень
+7(996) 563-22-04
г. Шахунья
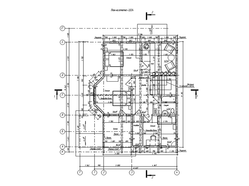
Фундамент — монолитная ж/б плита
Несущие стены — SIP панель (174мм)
Покрытие — металочерепица
Наружная отделка — штукатурка, облицовочная плитка, природный камень





