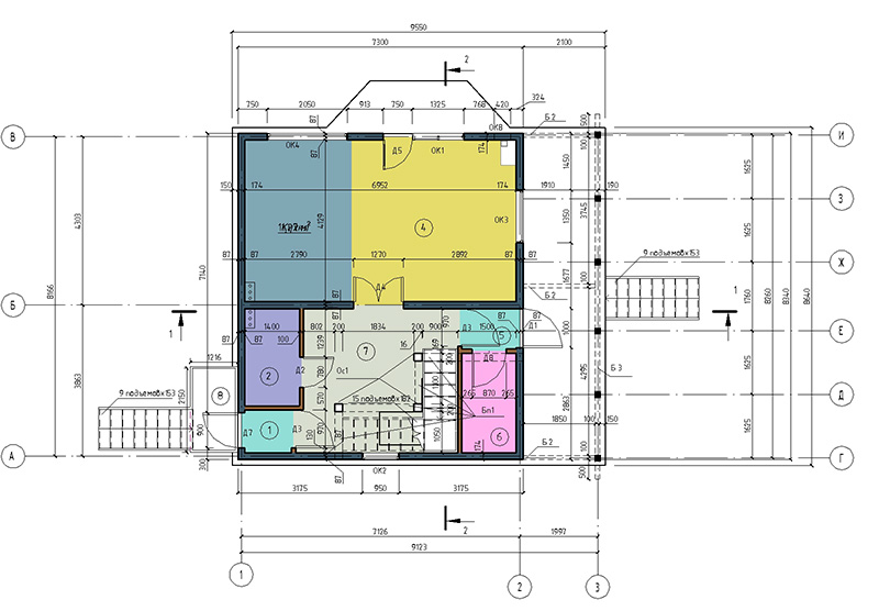
Фундамент — бетонные блоки, кирпич
Несущие стены — SIP панель (174мм)
Покрытие — гибкая черепица
Наружная отделка —декоративный кирпич
+7(996) 563-22-04
г. Шахунья
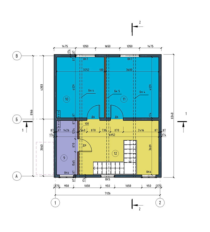
Фундамент — бетонные блоки, кирпич
Несущие стены — SIP панель (174мм)
Покрытие — гибкая черепица
Наружная отделка —декоративный кирпич





