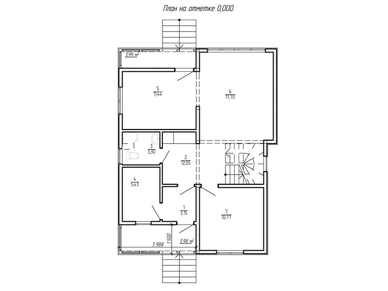
Фундамент — деревянный ростверк на винтовых сваях
Несущие стены — SIP панель (174мм)
Покрытие — битумная черепица
Наружная отделка — декоративная фасадная штукатурка, керамопанели
+7(996) 563-22-04
г. Шахунья
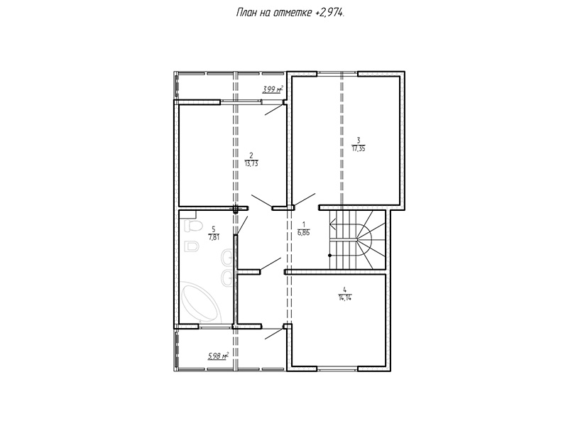
Фундамент — деревянный ростверк на винтовых сваях
Несущие стены — SIP панель (174мм)
Покрытие — битумная черепица
Наружная отделка — декоративная фасадная штукатурка, керамопанели





