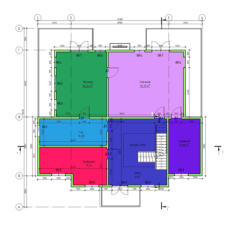
Фундамент — монолитный ж/б
Несущие стены — SIP панель (174мм)
Покрытие —мягкая черепица
Наружная отделка — штукатурка, облицовочная плитка, клинкерный кирпич
+7(996) 563-22-04
г. Шахунья
Фундамент — монолитный ж/б
Несущие стены — SIP панель (174мм)
Покрытие —мягкая черепица
Наружная отделка — штукатурка, облицовочная плитка, клинкерный кирпич





